МАКСИМАЛЬНОЕ ИСПОЛЬЗОВАНИЕ ЭНЕРГИИ
Корпус и лицевая часть вставки устойчивы к высоким температурам благодаря использованию в производстве высококачественной стали.
Эффективный процесс горения и поддержание температуры для более длительного сохранения тепла благодаря футеровке камеры сгорания TERMOTEC — теплоаккумулирующим материалом, который повышает температуру в камере сгорания.
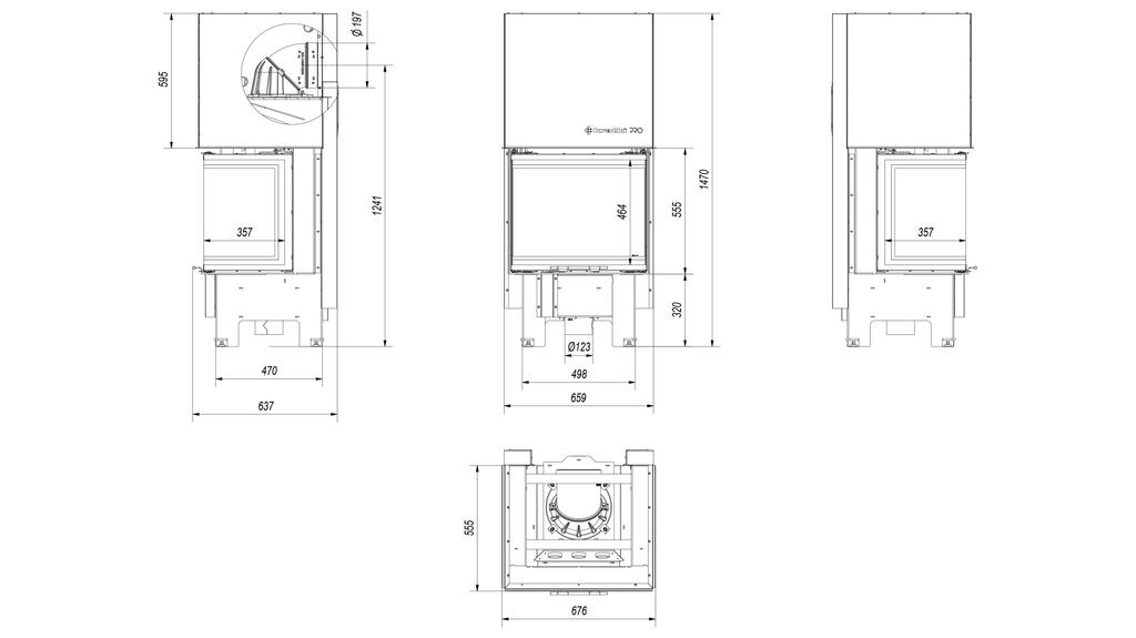
Подача воздуха осуществляется только снаружи благодаря встроенному наружному воздухозаборнику диаметром 125 мм.. Регулировка воздуха всего одним регулятором, что исключает возможность неправильного использования.
Тройная воздушная система камеры сгорания: первичный воздух - направляется на пластину сгорания; вторичный воздух, подаваемый через отверстия в задней стенке. Система воздухоочистки стекла (Завеса воздушная) также был применен.
БЕЗОПАСНОСТЬ В ЛУЧШЕМ СВОЁМ
Идеальная герметичность благодаря сплошным сварным швам, выполненным в среде защиты от инертных газов.
Все стальные элементы вырезаны лазером и гнуты на станках с ЧПУ.
Передняя часть вставки оснащена тройной термостойкой керамикой, выдерживающей температуру до 660°C.
ЭКОЛОГИЧЕСКОЕ ГОРЕНИЕ
Агрегат соответствует требованиям стандартов Экодизайна и ограничениям стандарта БИМЩВ 2, определяющего максимальную эмиссию СО.
УДОБНО ИСПОЛЬЗОВАТЬ
Подвижная решетка и зольник позволяют производить очистку топки.
Нижняя пластина вставки значительно уменьшена относительно двери.
Система открывания двойной двери - подъемная (Гильотина) и боковое отверстие. Подъемная дверца облегчает загрузку дров, а механизм открывания боковой дверцы позволяет очищать стекло.
Снижение образования сажи благодаря системе из чистого стекла (воздушная завеса).
СОВРЕМЕННЫЙ ДИЗАЙН
Трехстороннее остекление камина гарантирует максимальную видимость огня.
Удобный и тихий подъемный механизм упрощает чистку и обслуживание вставки.
Декоративное, термостойкое стекло выдерживает температуру до 660°C.. Придает камину современный и элегантный вид и визуально увеличивает переднюю часть топки.